역삼동 센터필드 사무실 임대
센터필드는 테헤란로 중심축에 자리한 대형 프라임 오피스로, West Tower와 East Tower 두 동으로 구성된 복합 업무시설입니다. B7~36F 규모, 연면적 약 72,000평대의 초대형 오피스 빌딩으로 2021년 준공된 최신 랜드마크 오피스빌딩입니다. 세련된 글라스 파사드와 개방적인 매스 디자인이 특징이며, 연식 대비 관리 수준이 매우 우수하여 외관부터 내부 공용부까지 안정된 컨디션을 유지하고 있습니다. 강남사무실임대 시장에서 상징적인 하이엔드 프라임 오피스를 찾는 기업들이 선호하는 대표적인 건물입니다.
센터필드 사무실 외관

테헤란로 대로변에 센터필드는 는, 대형 글라스 파사드와 개방적인 스카이라인이 돋보이는 현대적 외관을 갖춘 역삼동 랜드마크 업무시설입니다.
센터필드 사무실 위치
테헤란로 231(역삼동 676), 르네상스호텔사거리 대로변에 위치해있는 프라임 오피스빌딩으로 코너에 위치해 가시성과 접근성이 우수합니다.
센터필드 사무실 내부 전경




내부 공간은 호텔급 마감과 고급스러운 디자인이 더해져 쾌적함이 뛰어나며, 로비와 공용부에서 느껴지는 볼륨감·조명·동선 등이 전체 분위기를 한층 고급스럽게 만듭니다. 오피스 이용자들이 편리하게 업무를 볼 수 있도록 컨퍼런스룸, 오픈 라운지, 피트니스센터 등 다양한 입주사 전용 시설이 제공되며, 실내에서 비즈니스와 휴식을 모두 해결할 수 있는 환경이 갖춰져 있습니다.
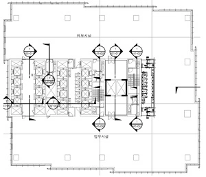
센터필드의 기준층 전용면적은 약 200평대로, 기둥이 대부분 외곽에 배치된 센터코어 구조를 적용해 효율적인 사무 공간 설계가 가능합니다. 내력벽이 거의 없어 레이아웃 자유도가 높고, 넓은 면적에서도 데드스페이스 없이 인테리어 활용성이 뛰어납니다.
실내로 진입하면 높은 층고와 막힘 없는 조망이 탁 트인 개방감을 제공해 임직원 만족도가 높은 편입니다. 자연광 유입도 우수하여 업무 집중도와 쾌적성이 크게 향상되며, 실제 기업들의 선호도가 높은 이유이기도 합니다.
1층은 대형 미디어월과 창의적 분위기의 인테리어가 조성돼 방문객에게 강한 첫인상을 남기며, 보안 시스템도 체계적으로 운영되고 있어 안정적인 업무 환경을 제공합니다. 저·중·고속 승강기가 구분 운영되어 출퇴근 시간에도 신속한 이동이 가능하며, 각 층 화장실은 남녀 분리형으로 넓고 깔끔하게 관리되어 있습니다.
테헤란로 센터필드 사무실 임대 정보
시장 상황과 공실 현황에 따라 아래 임대 정보(임대료, 관리비 등) 및 인센티브(렌트프리, 핏-아웃기간 등)에 변동이 있을 수 있으며, 임대 면적 분할 또는 확장 협의도 가능합니다.
| 주소 | 서울특별시 강남구 테헤란로231(역삼동 676) |
|---|---|
| 건물명 | 센터필드 |
| 층수 | 중층 / 36층 |
| 공급면적 | 1,550.94m²(469.16평) |
| 전용면적 | 749.59m²(226.75평) |
| 보증금 | 9억 1,810만원 |
| 임대료 | 9,181만원 |
| 관리비 | 2,488만원 |
| 엘리베이터 | 30대 |
| 주차 | 기본 4대 / 전체 889대 |
| 사용승인일 | 2021.01.30 |
| 방향 | 동향(주된 출입구) |
| 인근 지하철 | 역삼역(2호선) |
센터필드 사무실 임대 브리핑
센터필드는 테헤란로 중심에 위치한 최신 프라임급 랜드마크 오피스로, West·East 두 동으로 구성된 대형 복합 오피스 단지입니다. 2021년 준공된 연면적 7만 평대의 웅장한 규모와 고급 글라스 파사드, 호텔급 공용부가 조화를 이루어 역삼동사무실임대 시장에서 가장 경쟁력 있는 강남사무실임대 옵션으로 평가됩니다. 고급스러운 내부 마감과 세련된 디자인이 기업의 브랜드 이미지 제고에도 큰 효과를 주며, 넉넉한 주차시설까지 갖춰 대형 기업과 방문객 모두가 편리하게 이용할 수 있습니다.
컨퍼런스룸, 오픈 라운지, 피트니스센터, 갤러리, 지하 리테일 등 다양한 편의시설은 업무 효율성과 만족도를 높이는 요소로 꼽힙니다. 또한 저·중·고속 승강기 분리 운영과 체계적인 보안 시스템을 통해 쾌적하고 안정적인 업무 환경을 제공합니다. 이러한 시설·동선·관리 수준은 테헤란로 일대 오피스 중에서도 센터필드를 돋보이게 만드는 핵심 강점입니다.
종합적으로 센터필드는 입지·건물 스펙·편의시설·공간 효율·관리 품질 모두 최상급을 갖춘 테헤란로 대표 랜드마크 오피스로, 역삼동에서 프리미엄급 사무실을 찾는 기업에게 매우 강력한 선택지입니다. 특히 대형 면적 임대가 가능한 몇 안 되는 고급 오피스라는 점에서, 강남사무실임대 시장에서 센터필드의 가치는 더욱 돋보입니다.